Με την εξέταση μαθημάτων ειδικότητας συνεχίστηκαν σήμερα, Τετάρτη, οι Πανελλαδικές Εξετάσεις για τους υποψηφίους των ΕΠΑΛ. Οι υποψήφιοι εξετάστηκαν συγκεκριμένα σε Ηλεκτροτεχνία 2, Αρχιτεκτονικό Σχέδιο, Ναυτικό Δίκαιο και Ιστορία Σύγχρονης Τέχνης.
Αυτά είναι τα θέματα στην Ηλεκτροτεχνία 2




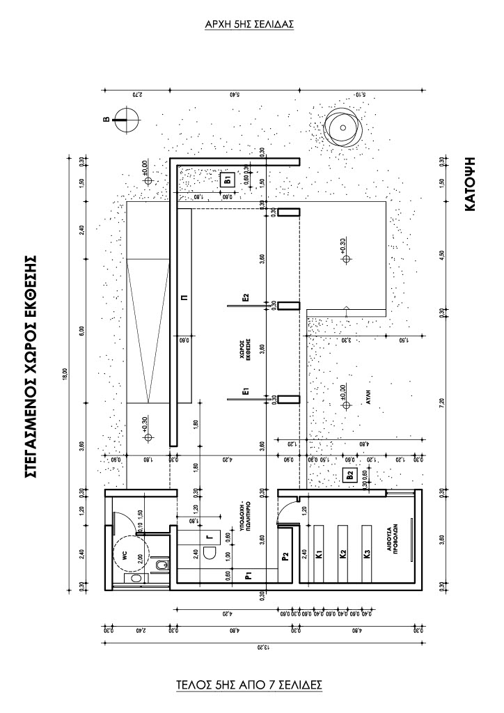
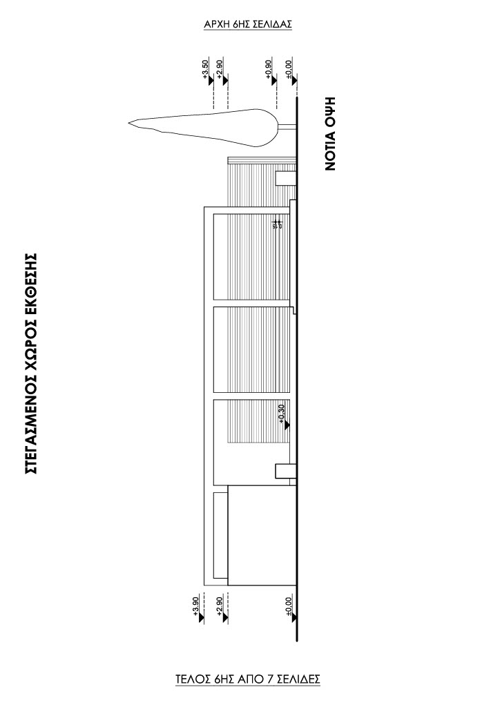
Αυτά είναι τα θέματα στο Αρχιτεκτονικό Σχέδιο







Αυτά είναι τα θέματα στο Ναυτικό Δίκαιο – Διεθνείς Κανονισμοί στη Ναυτιλία – Εφαρμογές





Αυτά είναι τα θέματα στην Ιστορία Σύγχρονης Τέχνης






Σημειώνεται, ότι η έναρξη των εξετάσεων έχει καθοριστεί να γίνεται στις 08:30 και έτσι, οι υποψήφιοι θα πρέπει να προσέρχονται στις αίθουσες εξέτασης μέχρι τις 08:00.
Η διάρκεια εξέτασης κάθε μαθήματος είναι τρεις (3) ώρες, εκτός από το μάθημα ειδικότητας «Αρχιτεκτονικό Σχέδιο», για το οποίο η διάρκεια εξέτασης είναι τέσσερις (4) ώρες.
Συνέχεια αύριο, Πέμπτη, με τα ΓΕΛ
Αύριο, Πέμπτη 6 Ιουνίου, οι υποψήφιοι των ΓΕΛ θα εξεταστούν στα Λατινικά (Ο.Π. Ανθρωπιστικών Σπουδών), τη Χημεία (Ο.Π. Θετικών Σπουδών και Σπουδών Υγείας) και την Πληροφορική (Ο.Π. Σπουδών Οικονομίας και Πληροφορικής).