Αν το δεις από μπροστά, το σπίτι αυτό στο Σιάτλ μοιάζει όπως όλα τα υπόλοιπα, σαν μια οποιαδήποτε συνηθισμένη οικία. Αν το δεις από το πλάι, όμως, αποκαλύπτει ένα «κρυφό» χαρακτηριστικό του, την «ιδιαιτερότητά» του: είναι πάρα πολύ στενό!
Διότι έχει πλάτος μόλις 1,4 μέτρα στη μία πλευρά, και 4,5 μέτρα στην άλλη.
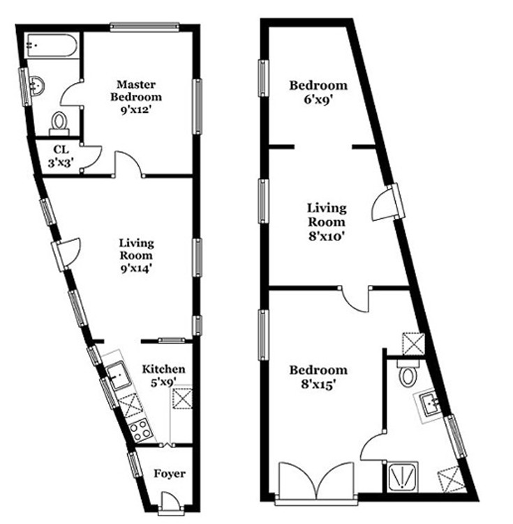
Χτίστηκε το 1925 και πωλείται έναντι 519.000 δολαρίων, η κατασκευή του ωστόσο συνοδεύεται από ένα μυστήριο και διάφορους θρύλους.
Μια θεωρία λέει πως οι γείτονες είχαν προσεγγίσει τον ιδιοκτήτη αυτής της λωρίδας γης ζητώντας να αγοράσουν την έκταση για να επεκτείνουν τον κήπο τους. Προσέφεραν όμως ένα πολύ μικρό ποσό και ο ιδιοκτήτης αποφάσισε να χτίσει το σπίτι αυτό για να τους «πικάρει».
Λέγεται μάλιστα πως αρχικά ο ένας τοίχος είχε βαφτεί μαύρος, κάτι που εξόργισε τους γείτονες που αντίκριζαν τη μαυρίλα και οι οποίοι εντέλει μάλιστα μετακόμισαν!
Παρά τον περιορισμένο χώρο, ο αρχιτέκτονας κατάφερε να συμπεριλάβει δύο υπνοδωμάτια, δύο σαλόνια, δύο μπάνια και μια στενή κουζίνα. Υπάρχει επίσης μπρος και πίσω αυλή και χώρος για το αυτοκίνητο.










